- Mirrors
- CCTV
- Lights
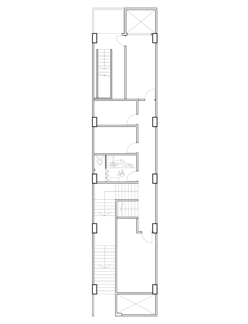
- Room #1
- Room #2
- Room #3
SEX ROOMS is Finalist for the TRANSFER Architecture Video Award
︎ watch it!

Sex Rooms are scattered throughout Hong Kong due to the unique legal situation surrounding the sex industry in the city, where brothels are illegal. Still, sex workers are allowed to work independently in rooms defined as ‘on-woman-room’ or ‘1-floor-1’.
These rooms are leftover spaces, often windowless, measuring the size of a massage bed and a shower. They are both public and private, domestic and business-focused, and they are nestled in walk-up buildings, residential units, and commercial blocks in an endless landscape of domesticity, safety, segregation, and resistance.
The presence of sex workers, clients, families, and businesses within the same space raises questions of spatial control, circulation, privacy, and co-existence of individual, collective, and public programs.
Looking at sex workers’ rooms, objects, bodies, and dreams, the research narrates intimate stories of overlooked spaces to challenge existing power structures and put women’s past and present narratives in conversation with their future.
These rooms are leftover spaces, often windowless, measuring the size of a massage bed and a shower. They are both public and private, domestic and business-focused, and they are nestled in walk-up buildings, residential units, and commercial blocks in an endless landscape of domesticity, safety, segregation, and resistance.
The presence of sex workers, clients, families, and businesses within the same space raises questions of spatial control, circulation, privacy, and co-existence of individual, collective, and public programs.
Looking at sex workers’ rooms, objects, bodies, and dreams, the research narrates intimate stories of overlooked spaces to challenge existing power structures and put women’s past and present narratives in conversation with their future.